Клієнтам
Telegram
Viber
(067)449-11-45

Інвестиція в комфорт | 1-к квартира в Park Side | Без Комісій

м.Басівка, вулиця.кінцева, 2

ID обʼєкту: 11224

44310$

Або напишіть нам
у месенджер:

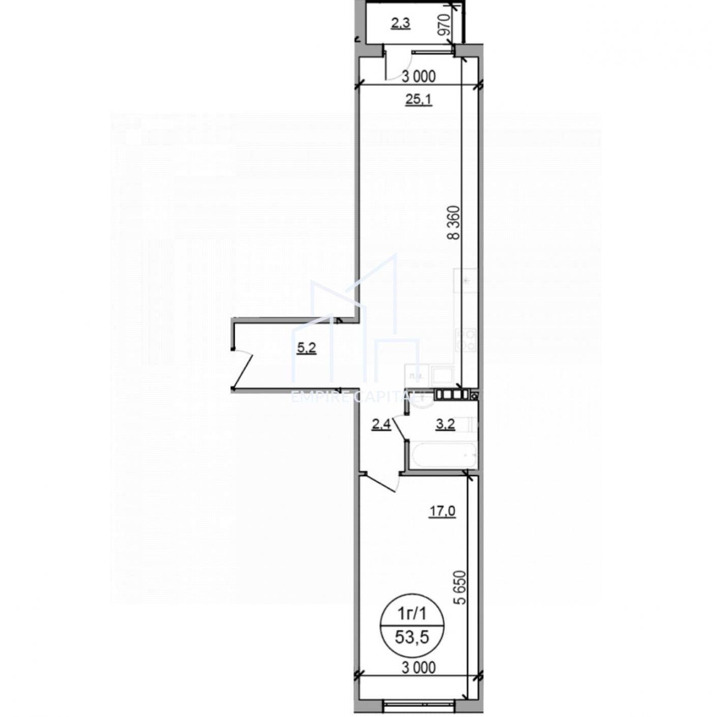
Характеристики

1 кімната

53 м²

Поверх 3/4

Опис

Продається простора 1-кімнатна квартира з відкритим балконом у майбутньому європейському місті — Park Side, всього за 10 км від центру Львова. Ідеально для життя або інвестування!

Локація: с. Басівка, Львівська кільцева дорога

Здача будинку: І квартал 2027 року

️ Площа: 53 м²

️ Поверх: 3-й

️ Планування: спальня кухня-студія

️ Балкон: відкритий

️ Стан: від забудовника

Про ЖК Park Side:

– Містечко на 87 га з 40 будинками (4–6 поверхів)

– Унікальна інфраструктура: 2 школи, 12 садочків, 5 стадіонів, 2 лікарні

– Відпочинкова зона з озером, скверами, дитячими та спортивними майданчиками

– Торгово-розважальний центр з «Сільпо»

– Водний оздоровчий парк (всесезонний)

– Приватно-державне партнерство забезпечить якість і доступність соціальних послуг

Підійде:

– Для інвестора, молодої пари або тих, хто хоче жити в новому концептуальному просторі поруч зі Львовом

Ціна: 43 603 $

Код #11224

Телефонуйте або пишіть — розповімо деталі та допоможемо з підбором найкращої планування!

В квартирі є

  • Опалення: будинкове ( власна котельня) Опалення: будинкове ( власна котельня)
  • Ремонт: без ремонту Ремонт: без ремонту

Місцезнаходження

м.Басівка, вулиця.кінцева, 2

Схожі обʼєкти

Продаж / Квартира / вул. Єрошенка Василя, Шевченківський район, Львів Без КомісіїЖК Emerald
Продаж Дата публікації: 14.05.2025

Продаж / Квартира / вул. Єрошенка Василя, Шевченківський район, Львів

2888$

Кіманати
2
Площа
48.9 м²
Поверх
2/4
Опалення: індивідуальне
Ремонт: без ремонту
Продаж / Таунхаус / садова, Сокільники
Продаж Дата публікації: 08.08.2024

Продаж / Таунхаус / садова, Сокільники

155000$

Кіманати
4
Площа
200 м²
Ремонт: евроремонт
Продаж 2-кімнатної квартири | пл. Петрушевича |
Продаж Дата публікації: 07.01.2026

Продаж 2-кімнатної квартири | пл. Петрушевича |

110000$

Кіманати
2
Площа
50 м²
Поверх
1/1
Опалення: індивідуальне
Ремонт: евроремонт
2-кімнатна в новобудові | 58.44 м² | вул. Балабанівка |
Продаж Дата публікації: 22.01.2025

2-кімнатна в новобудові | 58.44 м² | вул. Балабанівка |

70128$

Кіманати
2
Площа
58.44 м²
Поверх
2/3
Відео youtube: https://www.youtube.com/watch?v=PQ3SSMpb3Fs
Продаж 1-кімнатної квартири в зданому будинку ЖК ParkSide
Продаж Дата публікації: 09.01.2026

Продаж 1-кімнатної квартири в зданому будинку ЖК ParkSide

38000$

Кіманати
1
Площа
32 м²
Поверх
1/4
Опалення: індивідуальне
Ремонт: після будівельників
Дворівнева квартира з терасою 40 м² | ЖК ParkArena, біля Арени Львів
Продаж Дата публікації: 29.09.2025

Дворівнева квартира з терасою 40 м² | ЖК ParkArena, біля Арени Львів

110000$

Кіманати
3
Площа
106 м²
Поверх
9/10
Опалення: індивідуальне
Ремонт: після будівельників
1-кімнатна квартира 70 м² у ЖК Greenville Park | Дизайнерський ремонта
Продаж Дата публікації: 25.09.2025

1-кімнатна квартира 70 м² у ЖК Greenville Park | Дизайнерський ремонта

168000$

Кіманати
1
Площа
70 м²
Поверх
3/3
Ремонт: дизайнерський ремонт
2-к на Трускавецькій | Галжитлобуд | Двостороння, лоджія + балкон
Продаж Дата публікації: 23.07.2025

2-к на Трускавецькій | Галжитлобуд | Двостороння, лоджія + балкон

75000$

Кіманати
2
Площа
58 м²
Поверх
12/14
Опалення: індивідуальне
Ремонт: без ремонту
Продаж  3-кім. квартири, вул.Надійній
Продаж Дата публікації: 09.12.2024

Продаж 3-кім. квартири, вул.Надійній

200000$

Кіманати
3
Площа
98 м²
Поверх
3/3
Опалення: індивідуальне
Ремонт: без ремонту