Клієнтам
Telegram
Viber
(067)449-11-45

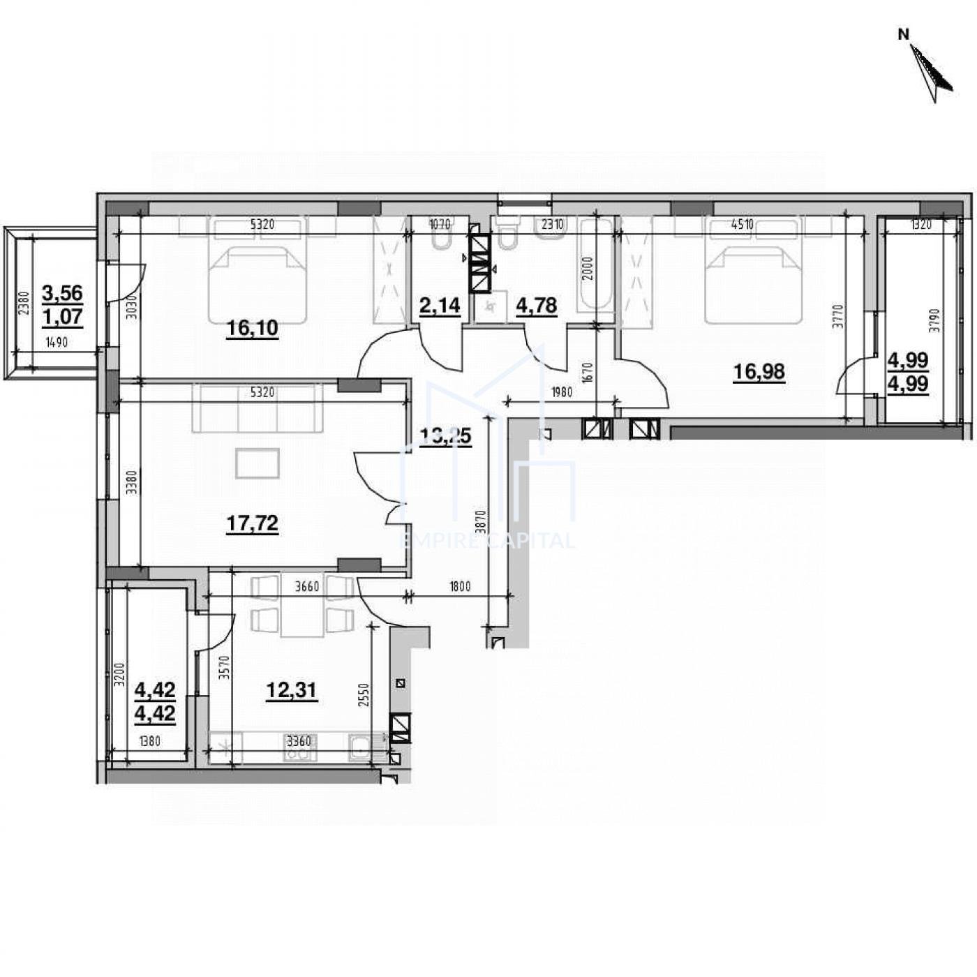
Продаж 3-к квартири ʼЖК Riel Cityʼ 98м²

м.Львів, вулиця.Рудненська, 8

ID обʼєкту: 12693

117720$

Або напишіть нам
у месенджер:

Характеристики

3 кімната

98 м²

Поверх 6/12

Опис

Пропонується до продажу простора 3-кімнатна квартира в сучасному ЖК Riel City — ідеальний варіант для комфортного життя або інвестиції. Продумане планування та розвинена інфраструктура комплексу створюють комфорт щодня.
Локація: вул. Рудненська (Залізничний район)
Площа: 98,1 м²
Кухня: 12 м²
Поверх: 6 з 12
Планування: функціональне, без зайвих площ
Стан: після будівельників
Опалення: дахова газова котельня
Доступні умови:
– перший внесок від 30%
– розтермінування
– підходить під державні програми (єОселя, єВідновлення)
Переваги ЖК:
– закрита територія без авто
– прогулянкові алеї та зелені зони
– власна школа на території
– зони відпочинку, воркаут, дитячі майданчики
– продумана концепція “місто в місті”
Підійде:
– Для сім’ї, яка шукає простір і комфорт
– Для інвестора під оренду
– Для тих, хто хоче новобудову з готовою інфраструктурою
Телефонуйте — підберемо зручний час для перегляду та детально проконсультуємо!

Ціна: 117 720 $
Код #12693

В квартирі є

  • Є оселя: Так Є оселя: Так
  • Опалення: будинкове ( власна котельня) Опалення: будинкове ( власна котельня)
  • Паркінг: Так Паркінг: Так
  • Ремонт: після будівельників Ремонт: після будівельників

Місцезнаходження

м.Львів, вулиця.Рудненська, 8

Схожі обʼєкти

Продаж 1-к квартири ЖК Парк Арена
Продаж Дата публікації: 03.04.2026

Продаж 1-к квартири ЖК Парк Арена

60000$

Кіманати
1
Площа
49 м²
Поверх
8/10
Опалення: індивідуальне
Паркінг: Так
Ремонт: після будівельників
Продаж 1 кім. квартири, Шевченківський район ЖК Viking Hills
Продаж Дата публікації: 08.01.2025

Продаж 1 кім. квартири, Шевченківський район ЖК Viking Hills

62000$

Кіманати
1
Площа
41 м²
Поверх
5/7
Опалення: будинкове ( власна котельня)
Ремонт: без ремонту
Продаж / Квартира / Сухомлинського, Винники
Продаж Дата публікації: 26.03.2025

Продаж / Квартира / Сухомлинського, Винники

1000$

Кіманати
2
Площа
96 м²
Поверх
4/5
Опалення: індивідуальне
Ремонт: евроремонт
Світла 2к з кухнею 17,14 м² | Новобудова SOUL PARK | 3 поверх
Продаж Дата публікації: 15.08.2025

Світла 2к з кухнею 17,14 м² | Новобудова SOUL PARK | 3 поверх

93288$

Кіманати
2
Площа
66 м²
Поверх
3/6
Відео youtube: https://www.youtube.com/watch?v=PQ3SSMpb3Fs
Сучасна 2-кімнатна квартира у ЖК “Яскравий Львів” | Вул. Зелена, 269М |
Продаж Дата публікації: 10.10.2025

Сучасна 2-кімнатна квартира у ЖК “Яскравий Львів” | Вул. Зелена, 269М |

117000$

Кіманати
2
Площа
66 м²
Поверх
14/14
Опалення: індивідуальне
Ремонт: евроремонт
Продаж 1-кімнатної квартири в ЖК Avalon Magnolia 47 м²
Продаж Дата публікації: 09.04.2026

Продаж 1-кімнатної квартири в ЖК Avalon Magnolia 47 м²

77000$

Кіманати
1
Площа
47 м²
Поверх
1/5
Опалення: індивідуальне
Паркінг: Так
Ремонт: після будівельників
Продаж / Квартира / вул. Мазепи Івана, гетьмана, Шевченківський район, Львів
Продаж Дата публікації: 26.06.2025

Продаж / Квартира / вул. Мазепи Івана, гетьмана, Шевченківський район, Львів

101840$

Кіманати
3
Площа
85.8 м²
Поверх
9/11
Опалення: центральне
Ремонт: без ремонту
Продаж / Квартира / Чорноморська, Галицький район, Львів
Продаж Дата публікації: 07.07.2022

Продаж / Квартира / Чорноморська, Галицький район, Львів

105000$

Кіманати
2
Площа
44 м²
Поверх
2/2
Опалення: індивідуальне
Ремонт: дизайнерський ремонт
3-кімнатна квартира в ЖК «Софіївка» | вул. Угорська
Продаж Дата публікації: 29.08.2024

3-кімнатна квартира в ЖК «Софіївка» | вул. Угорська

280000$

Кіманати
3
Площа
95 м²
Поверх
6/10
Є оселя: Так
Опалення: індивідуальне
Паркінг: Так
Ремонт: евроремонт